ШИНОРЕМОНТНЫЕ МАТЕРИАЛЫ ОБОРУДОВАНИЕ И ИНСТРУМЕНТ
-
Киевстар
-
Киевстар
-
Vodafone
| ПН-ПТ: | 09:00 - 18:00 |
| СБ-ВС: | выходной |
Гидравлическая траверса RJ-10A
Пневмогидравлическая траверса 4500 кг
для четырехстоечных подъемников и смотровых ям
Оснащен пневматическим гидравлическим насосом.
Усиленная прочная стальная рама обеспечивает прочность траверсы, что обеспечивает более стабильное выполнение сервисных работ.
Полный комплект удлинителей 2,5" (63,5 мм) и 5" (127 мм) и сверхпрочных резиновых прокладок.
Выдвижные кронштейны для легкого позиционирования и регулировки, с максимальным 1680 мм и минимальным подхватом 975 мм.
Ручной замок безопасности с двумя положениями блокировки делает доступ оператора более удобным и комфортным.
Регулируемый нижний скользящий узел. Подходит для ширины между направляющими от 1010 до 1435 мм.
Эргономичное защитное ограждение помогает защитить масляный шланг, а также легко перемещать домкрат.
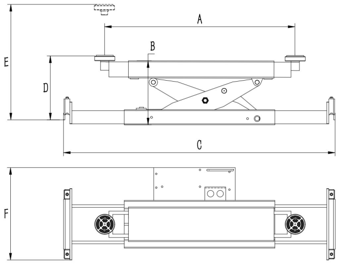
| грузоподъемность | 4500 кг | |
| насос | пневматический | |
| время подъема | 50 секунд | |
| размах резиновых опор | A | 975 - 1680 мм |
| минимальная высота | B | 280 мм |
| ширина опорного основания | C | 1010 - 1435 мм |
| минимальная высота резиновых опор | D | 289 мм |
| максимальная высота подъема (без адаптеров) | E | 556 мм |
| максимальная высота подъема (с адаптерами) | 747 мм | |
| общая ширина | F | 555 мм |
| воздушное давление | 8 бар |

![]() |
![]() |
![]() |
| Пневматический гидравлический насос отличного качества, сочетающийся с масляным шлангом высокого рабочего давления. | Запатентованная конструкция системы плавающих роликов сочетается с защитным корпусом, обеспечивающим плавное перемещение домкрата и стабильное положение в пазу во время подъема транспортного средства. | Простая ручная блокировка обеспечивает доступ к нескольким положениям блокировки для комфортной рабочей высоты. |
![]() |
![]() |
![]() |
| Телескопические рычаги, настроенные для работы с разными шасси автомобилей, и регулируемый нижний скользящий узел подходят почти для всех четырехстоечных и ножничных подъемников. | Вставные резиновые прокладки с удлинителями 63,5 и 127 мм. | Эргономичное защитное ограждение помогает защитить масляный шланг, а также легко перемещать домкрат. |
- БЕСПЛАТНО в пределах Киева, Днепра, Харькова, Львова, Одессы
- самовывоз со склада (контакты)
- курьерские службы: Новая Почта/Delivery/SAT
Доставка в пределах Киева, Днепра, Львова, Харькова и Одессы осуществляется бесплатно.
Для отправки в другие регионы мы пользуемся такими компаниями-перевозчикам:
- Новая Почта
- Delivery
- SAT
Если есть необходимость воспользоваться другим перевозчиком, уточняйте такую возможность у наших менеджеров.
Как правило, отгрузка производится день в день, а это означает, что уже на следующий день Вы сможете получить товар в удобном для Вас представительстве.
В сервисных центрах компании "АВТОМАШТЕХ" работают квалифицированные инженеры с высшим образованием. Мы регулярно отправляем наших сотрудников на обучение в компании-производители для изучения особенностей обслуживания того или иного оборудования.
Услуги сервисного центра:
- обслуживание и ремонт оборудования в гарантийный срок;
- обслуживание и ремонт оборудования в послегарантийный срок;
- просчет и установка воздушных систем;
- подбор и продажа запчастей на оборудование;
- предоставление рекомендаций по размещению оборудования.
|
г. Киев |
|
| г.Днепр ул. Большая Диевска.52 тел.: (+38 067) 538-70-14; GPS координаты: 48.4759497,34.909491. e-mail:dnepr@tiptop.com.ua |
|
| г.Львов ул. Химическая, 4 тел.: (+38 067) 240-03-60; GPS координаты: 49.8542624,24.0205183,17 e-mail: lviv.lviv@tiptop.com.ua |
|
| г. Харьков пр-т. Героев Харькова, 199 тел.: (+38 067) 693-13-57; GPS координаты:49.9770534,36.2952883. e-mail:e-mail: kharkov@tiptop.com.ua |
Цены:
Стоимость услуг сервисного центра договорная. Для уточнения, связывайтесь с нашими представительствами.
Обратите внимание на то, что гарантия предоставляемая нашей компанией не распространяется на электрическую часть оборудования, которое подключено к электрической сети без стабилизатора и анализатора фаз!
Оставьте свой номер телефона и мы Вам перезвоним






Об этом товаре пока нет отзывов