ШИНОРЕМОНТНЫЕ МАТЕРИАЛЫ ОБОРУДОВАНИЕ И ИНСТРУМЕНТ
-
Киевстар
-
Киевстар
-
Vodafone
| ПН-ПТ: | 09:00 - 18:00 |
| СБ-ВС: | выходной |
Двухстоечный подъемник PEAK 212C
Двухстоечный электрогидравлический подъемник с верхней синхронизацией
Новый 212C является особенно крепким подъемником, который может легко поднимать тяжелые автомобили и грузовики. Благодаря технологии Peak 3-in-1, он интегрируется с 3 регулируемыми высотами для различных требований. Усиленные трехступенчатые рычаги гибко настроены для обслуживания разных транспортных средств.
Грузоподъемность 5500 кг (12 000 фунтов)
Двойные гидравлические цилиндры с прямым приводом разработаны и изготовлены по высоким стандартам, высококачественные масляные уплотнители для цилиндров
Авиационные троса используются для синхронизации. Доступен 1 комплект тросов для 3 настроек высоты
4 трехступенчатые рычаги подходят для большего количества транспортных средств с большой длиной
Самосмазывающиеся ползунки из полиэтилена UHMW и бронзовая втулка
Одноточечная предохранительная разблокировка
Дизайн Clearfloor обеспечивает беспрепятственное пространство
Верхнее устройство защитного отключения
Укрепление и утолщение тяжелой конструкции подъемника
Автоматические фиксаторы рычагов
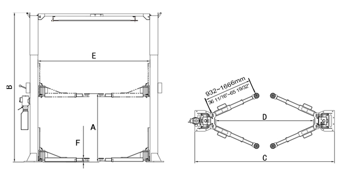
| грузоподъемность | 5500 кг | |
| время подъема | 69 секунд | |
| максимальная высота подъема (без адаптеров) | А | 1842 мм |
| максимальная высота подъема (с адаптерами) | 2071 мм | |
| максимальная высота замка (без адаптеров) | 1792 мм | |
| максимальная высота замка (с адаптерами) | 2021 мм | |
| общая высота (низкая настройка) | В | 4420 мм |
| общая высота (средняя настройка) | 4725 мм | |
| общая высота (высокая настройка) | 5030 мм | |
| общая ширина | С | 3829 мм |
| ширина сквозного проезда | D | 2787 мм |
| расстояние между колоннами | E | 3137 мм |
| минимальная высота колодки (клиренс) | F | 115 мм |
| мощность двигателя | 2,2 кВт (3.0HP) | |
| источник питания | 380 В / 50 Гц | |
| размер упаковки | 2950 х 540 х 1065 мм | |
| вес | 1064 кг |

| Одноточечная разблокировка обеих колонн с одной стороны | Гидравлические цилиндры с прямым приводом | 4 трехступенчатые рычаги для большего количества транспортных средств |
![]() |
![]() |
![]() |
| Автоматические фиксаторы-ограничители рычагов | Самосмазывающаяся бронзовая втулка не требует дополнительной смазки | Набор резиновых опор с удлинителями 1,5, 2,5, 5 дюймов |
![]() |
![]() |
![]() |
| Опциональный U-образный адаптер для легких грузовиков (артикул 20802) | Опциональный U-образный адаптер для тяжелых грузовиков (артикул 21103) | Дополнительный удлинитель опорной пластины (артикул 21501) |
![]() |
![]() |
![]() |
- БЕСПЛАТНО в пределах Киева, Днепра, Харькова, Львова, Одессы
- самовывоз со склада (контакты)
- курьерские службы: Новая Почта/Delivery/SAT
Доставка в пределах Киева, Днепра, Львова, Харькова и Одессы осуществляется бесплатно.
Для отправки в другие регионы мы пользуемся такими компаниями-перевозчикам:
- Новая Почта
- Delivery
- SAT
Если есть необходимость воспользоваться другим перевозчиком, уточняйте такую возможность у наших менеджеров.
Как правило, отгрузка производится день в день, а это означает, что уже на следующий день Вы сможете получить товар в удобном для Вас представительстве.
В сервисных центрах компании "АВТОМАШТЕХ" работают квалифицированные инженеры с высшим образованием. Мы регулярно отправляем наших сотрудников на обучение в компании-производители для изучения особенностей обслуживания того или иного оборудования.
Услуги сервисного центра:
- обслуживание и ремонт оборудования в гарантийный срок;
- обслуживание и ремонт оборудования в послегарантийный срок;
- просчет и установка воздушных систем;
- подбор и продажа запчастей на оборудование;
- предоставление рекомендаций по размещению оборудования.
|
г. Киев |
|
| г.Днепр ул. Большая Диевска.52 тел.: (+38 067) 538-70-14; GPS координаты: 48.4759497,34.909491. e-mail:dnepr@tiptop.com.ua |
|
| г.Львов ул. Химическая, 4 тел.: (+38 067) 240-03-60; GPS координаты: 49.8542624,24.0205183,17 e-mail: lviv.lviv@tiptop.com.ua |
|
| г. Харьков пр-т. Героев Харькова, 199 тел.: (+38 067) 693-13-57; GPS координаты:49.9770534,36.2952883. e-mail:e-mail: kharkov@tiptop.com.ua |
Цены:
Стоимость услуг сервисного центра договорная. Для уточнения, связывайтесь с нашими представительствами.
Обратите внимание на то, что гарантия предоставляемая нашей компанией не распространяется на электрическую часть оборудования, которое подключено к электрической сети без стабилизатора и анализатора фаз!
Оставьте свой номер телефона и мы Вам перезвоним









Об этом товаре пока нет отзывов