ШИНОРЕМОНТНЫЕ МАТЕРИАЛЫ ОБОРУДОВАНИЕ И ИНСТРУМЕНТ
-
Киевстар
-
Киевстар
-
Vodafone
| ПН-ПТ: | 09:00 - 18:00 |
| СБ-ВС: | выходной |
Гидравлическая траверса J-6A
Пневмогидравлическая траверса 2800 кг
для четырехстоечных подъемников и смотровых ям
Низкопрофильный роликовый домкрат грузоподъемностью 2800 кг, что делает его идеальным дополнением к любым четырехстоечным и ножничным подъемникам грузоподъемностью менее 5500 кг.
В нем используется запатентованная технология качения с плавающим движением, чтобы домкрат плавно двигался по рельсу и стабильно находился в пазу во время подъема транспортного средства..
Оснащен пневматическим гидравлическим насосом.
Стандартно поставляется с удлинителями 63,5 мм и прочными резиновыми прокладками.
Регулируемые кронштейны для легкого положения и регулировки нужной точки опоры.
Ручной предохранитель обеспечивает два положения блокировки, что позволяет легко обнаружить удобную рабочую высоту.
Выдвижной нижний скользящий узел. Подходит для ширины между рельсами от 856 мм до 1342 мм.
Эргономичное защитное ограждение помогает защитить масляный шланг, а также легко перемещает домкрат.
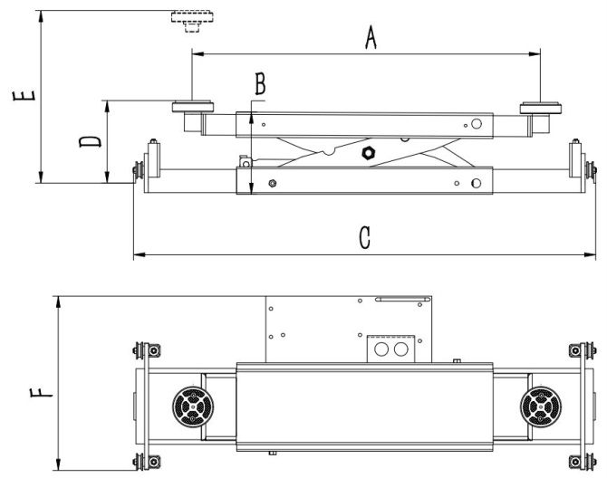
| грузоподъемность | 2800 кг | |
| насос | пневматический | |
| время подъема | 22 секунды | |
| размах резиновых опор | A | 840 - 1357 мм |
| минимальная высота | B | 215 мм |
| ширина опорного основания | C | 848 - 1330 мм |
| минимальная высота резиновых опор | D | 224 мм |
| максимальная высота подъема (без адаптеров) | E | 456 мм |
| максимальная высота подъема (с адаптерами) | 520 мм | |
| общая ширина | F | 510 мм |
| вес | 116 кг |

![]() |
![]() |
![]() |
| Высококачественный пневматический гидравлический насос со шлангом высокого давления и долговечности. | Патентованное устройство плавающего качения позволяет домкрату плавно двигаться по рельсу и стабильно находиться в пазу во время подъема транспортного средства. | Ручной предохранитель с легким управлением. |
![]() |
![]() |
![]() |
| Регулируемая ширина подходит почти для всех четырехстоечных и ножничных подъемников. | Вставные резиновые прокладки с удлинителями 63,5 мм. | Эргономичное защитное ограждение помогает защитить масляный шланг, а также легко перемещать домкрат. |
- БЕСПЛАТНО в пределах Киева, Днепра, Харькова, Львова, Одессы
- самовывоз со склада (контакты)
- курьерские службы: Новая Почта/Delivery/SAT
Доставка в пределах Киева, Днепра, Львова, Харькова и Одессы осуществляется бесплатно.
Для отправки в другие регионы мы пользуемся такими компаниями-перевозчикам:
- Новая Почта
- Delivery
- SAT
Если есть необходимость воспользоваться другим перевозчиком, уточняйте такую возможность у наших менеджеров.
Как правило, отгрузка производится день в день, а это означает, что уже на следующий день Вы сможете получить товар в удобном для Вас представительстве.
В сервисных центрах компании "АВТОМАШТЕХ" работают квалифицированные инженеры с высшим образованием. Мы регулярно отправляем наших сотрудников на обучение в компании-производители для изучения особенностей обслуживания того или иного оборудования.
Услуги сервисного центра:
- обслуживание и ремонт оборудования в гарантийный срок;
- обслуживание и ремонт оборудования в послегарантийный срок;
- просчет и установка воздушных систем;
- подбор и продажа запчастей на оборудование;
- предоставление рекомендаций по размещению оборудования.
|
г. Киев |
|
| г.Днепр ул. Большая Диевска.52 тел.: (+38 067) 538-70-14; GPS координаты: 48.4759497,34.909491. e-mail:dnepr@tiptop.com.ua |
|
| г.Львов ул. Химическая, 4 тел.: (+38 067) 240-03-60; GPS координаты: 49.8542624,24.0205183,17 e-mail: lviv.lviv@tiptop.com.ua |
|
| г. Харьков пр-т. Героев Харькова, 199 тел.: (+38 067) 693-13-57; GPS координаты:49.9770534,36.2952883. e-mail:e-mail: kharkov@tiptop.com.ua |
Цены:
Стоимость услуг сервисного центра договорная. Для уточнения, связывайтесь с нашими представительствами.
Обратите внимание на то, что гарантия предоставляемая нашей компанией не распространяется на электрическую часть оборудования, которое подключено к электрической сети без стабилизатора и анализатора фаз!






Об этом товаре пока нет отзывов